Overview
-
1430161
-
22 July 2025
-
Townhouse
-
Let!
-
1
-
2
-
1
Description
2 Bedroom Mountain Creek Townhouse with Water Frontage!
Enjoy the summer fun on the water!
This 2 storey townhouse has water frontage, perfect for a fish or stand up paddle from your back door.
One of the best features of this 2 bedroom property is the waterfrontage with a covered patio overlooking the shoreline, adjoining back deck and fully fenced grassed yard.
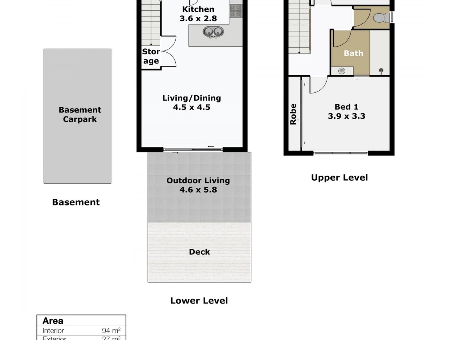
As you enter the townhouse hybrid timber floors greet the downstairs area with a modern white kitchen featuring a dishwasher drawer. The open plan kitchen flows through to the living area and onto the outdoor area. There is a separate toilet and laundry on the ground level also.
Upstairs are two good sized bedrooms with an updated modern bathroom that has two-way access to the master bedroom at the rear overlooking the waterways.
Perfectly located and within easy walking distance to Mountain Creek Schools. There is also easy access through the underpass to Mooloolaba & Kawana, a perfect cycle distance.
Features we love include:
- Two bedrooms with built in wardrobes.
- Pool in complex.
- Waterfrontage to Mooloolah River.
- Outdoor covered patio.
- Fenced small grassed backyard.
- Open plan living area.
- Air-conditioned main bedroom.
- Galley kitchen with stone bench tops & dish drawer.
- Two-way bathroom upstairs and additional toilet downstairs.
- Single secure basement car park.
- Security screen to front door.
- Walk to Mountain Creek schools.
- Easy access to motorways & Mooloolaba.
Enquire now!
Features
- Air Conditioning
- Built-in Wardrobes
Agents
Floorplan






















